Villa singola in vendita

Dipignano, Via Cappuccini
€ 260.000
7 locali 7 locali
386 Mq 386 Mq
3 bagni 3 bagni

Villa singola in vendita

Dipignano, Via Cappuccini

Descrizione annuncio

Dipignano - Via Cappuccini 64

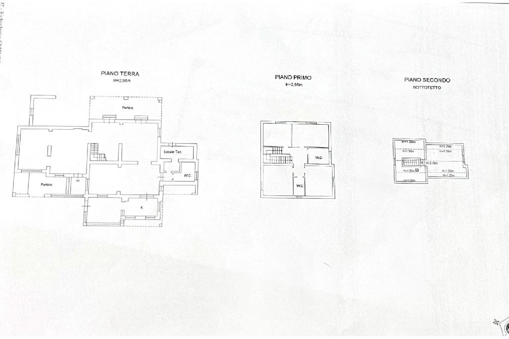
Proponiamo in vendita villa singola nel comune di Dipignano che offre ampi spazi e comfort su più livelli.

Questa residenza di 386 mq è circondata da un grande giardino, ideale per chi cerca tranquillità e contatto con la natura.

Entrando nell'abitazione troviamo una zona giorno molto ampia e luminosa, vi è un primo soggiorno con camino e zona relax, si prosegue per un secondo soggiorno che ci conduce ad un ampia sala da pranzo attraverso la quale si può accedere all'ampio giardino, dotato di ogni comfort da poter sfruttare per momenti di convivialità.

A seguire troviamo una zona ideale per chi vuole vivere momenti di tranquillità che precede la cucina, spaziosa e funzionale, con accesso su una veranda abitabile, creando un ambiente ideale per pranzi all'aperto. A completare la zona giorno un primo bagno, una comoda lavanderia ed un ripostiglio.

Il secondo livello di questa spaziosa villa comprende la zona notte, composta da quattro camere da letto: due matrimoniali, una doppia ed una singola, tutte e quattro finestrate e luminose. Doppi servizi completano la comodità di questo secondo piano.

Completano la soluzione un ampio terreno di circa 5700 mq ed un ampia e comoda soffitta.

L'immobile è stato completamente ristrutturato con il bonus 110 nel 2021, e comprende impianto fotovoltaico di 6 kw, cappotto termico e stazione di ricarica per macchine elettriche.

La proprietà rappresenta un'opportunità unica per chi desidera vivere in un contesto residenziale tranquillo, senza rinunciare alla comodità di ampi spazi interni ed esterni.

Per fissare un appuntamento e visionare l’immobile è possibile contattare il numero 377 093 5051. Il nostro team sarà lieto di accompagnare ogni interessato nella visita.

Inoltre, per chi intende procedere all’acquisto tramite mutuo, è prevista una consulenza gratuita e personalizzata, riservata ai nostri clienti, a cura del team di esperti Kìron, società di mediazione creditizia del Gruppo Tecnocasa.

Mostra tutto

Nelle vicinanze

Scuole Scuole
Istituto Comprensivo Scipione Valentini
1,2 Km
Ristoranti Ristoranti
Osteria Dal Cugino
1,0 Km
Mostra tutto

Caratteristiche

Rif.:
61082783
Piano:
Su più livelli di 3
Totale piani:
3
Posti auto:
2
Balconi:
2
Terrazzi:
2
Mostra tutto
Prezzo Prezzo
€ 260.000
Rata mutuo Rata mutuo
€ 1.225 / mese
Spese annue Spese annue
€ 0
Proponi il tuo prezzoProponi il tuo prezzo
Immobile valutato con T·Valuta

Classe Energetica

A1
A1
A1
A1
A1
A1
A1
A1
A1
EP globale non rinnovabile:
64.91 kW h/m² anno
EP globale rinnovabile:
64.91 kW h/m² anno
EP invernale del fabbricato:
EP estiva del fabbricato:
Anno di costruzione:
1980
Riscaldamento:
Autonomo
Tipo impianto:
A radiatori
Tipo alimentazione:
GPL

Ti interessa visionare l'immobile?

Fissa un appuntamento  Fissa un appuntamento

Richiedi informazioni

Clicca su Leggi per aprire l'informativa
* Questi campi sono obbligatori

Calcola il tuo mutuo

Semplice e senza impegno
Anticipo

( % )
Mutuo

( % )

pochi semplici passi

inserisci i tuoi dati
Questionario completato
Grazie per aver richiesto un appuntamento senza impegno con un nostro Consulente del Credito e Assicurativo.

Hai inserito correttamente tutti i dati necessari e a breve riceverai una e-mail con un link da convalidare per inviare i tuoi dati.
Affiliato
Studio Immobiliare Cosenza Centro Srl
Corso Mazzini, 18 87100 Cosenza (CS)

Il nostro staff


  • Giuseppe Di Santo
    Affiliato

  • Ida Sconosciuto
    Coordinatrice

  • Alex Gencarelli
    Affiliato
Corso Mazzini, 18 87100 Cosenza (CS)
Zona: Cosenza
Mostra su mappa
Orari: Mattina 9:00 - 13:00 Pomeriggio 15.30 - 20.00
Affiliato
Studio Immobiliare Cosenza Centro Srl
Corso Mazzini, 18 87100 Cosenza (CS)

2026 Tecnocasa Franchising S.p.A. - P. IVA 08365160152 - Via Monte Bianco 60/A 20089 Rozzano (MI). Ogni agenzia ha un proprio titolare ed è autonoma. Privacy policy | Policy utilizzo | Cookie policy